山东菏泽京东云仓改造工程

时间:2024-07-29 08:48:00 点击:1219次


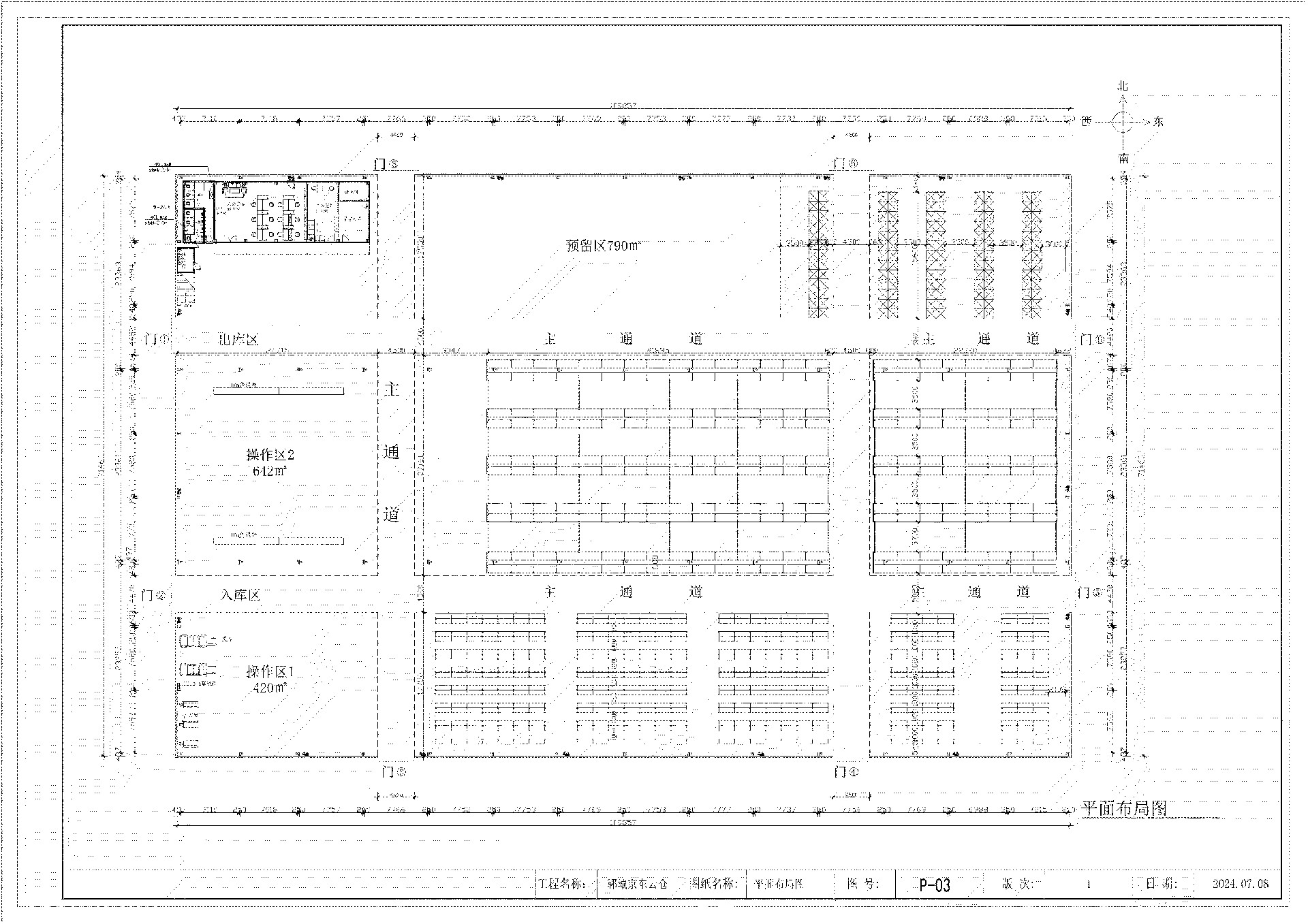
京东云仓储改造工程


项目面积:8000平方米,

物业类型:原有标准厂房改造为京东云仓储库房

项目地址:山东省菏泽市郓城县

微信图片_20240729085046.jpg


服务热线

18660192690

微信服务号